各种装修图纸你看得懂吗?
装修设计图纸是装修施工的依据,设计图纸的好坏、准确与否、齐全与否关系着装修的效果,电路布线、水路布线、天花吊顶图纸怎么看每一项工程都需要图纸的指挥。那么你知道家装的主要图纸都包括那些吗?各种装修图纸要如何看懂呢?下面我们一起来学习吧装修经验!
家装图纸是指在装修过程中需要让业主和施工人员知道怎么做的设计者构想的纸面化。
1、原始建筑测量图
原始建筑测量包括每个房间的面积和方位、墙体厚度、梁柱的位置和尺寸、门窗的尺寸和位置,还有上下水管道的位置、进户电源的位置、煤气管道的位置、空调孔的位置,以及这些管道的尺寸。这些尺寸都是装修公司上门量房需要测量的尺寸,然后根据这些尺寸画出原始建筑图。以后的一切设计都以这个尺寸为基准,因此原始建筑测量图必须特别精细准确。

2、装修平面布局图
平面布局图是指房屋的平面布局,包括功能区的划分,即主卧、次卧、厨房、卫生间的划分。然后要表明每个房间墙的位置和墙的厚度、结构柱的位置和尺寸、门窗的宽度,若是有楼梯设计,那么在平面中标明上下层位置、以及梯级计算,还有每个房门开启的方向,活动的家具、装修的位置等。

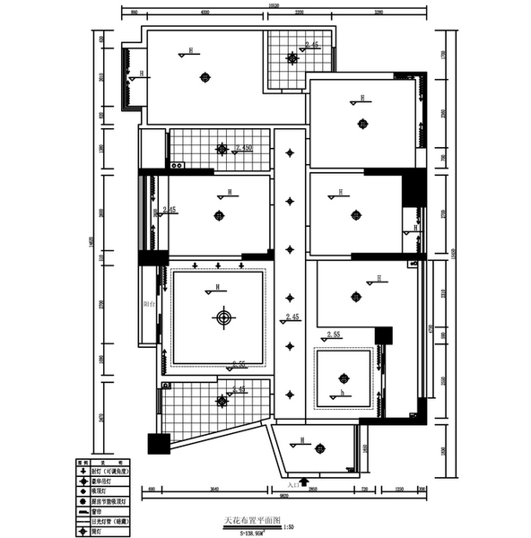
3、天花吊顶布置图
天花吊顶布置图是工人装修吊顶时最重要的依据,图上应该标明每个房间的全称及各个房间天花造型的尺寸、位置,灯具的位置及种类,最重要的还要标明天花板距地面的高度。

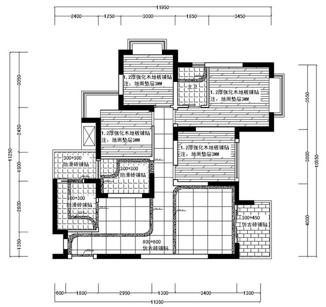
4、地面材质图
地面材质图上应标明每个区域的地面选材、铺设厚度等,这是工人做地面施工时一定要参考的。

5、配电系统图
配电图在所有图纸中的占据计气重要的地位的,配电图需要把各个插座电源的位置全家不确定,保证使用的方便性,同时在插座的数量上要留出一定的余裕来,而且插板不能被家居等遮挡。

6、建筑改建平面图
建筑改建平面图是墙体新建拆除工程的施工依据,图中用虚实线来标明需要拆除或是改建的墙体。

7、强弱电布置图
强弱地安静布置图关系着以后家庭用电的安全,因为空调、洗衣机、冰箱等的用电量极大,必须使用强电,否则会出现断电、跳闸等现象。

除此之外,设计图还包括给水走向图、立面图、局部放大图和节点详图等。
以上这些装修设计图纸,你看懂了吗?还看不懂的话,不妨花点时间来研究下。

APP
微信